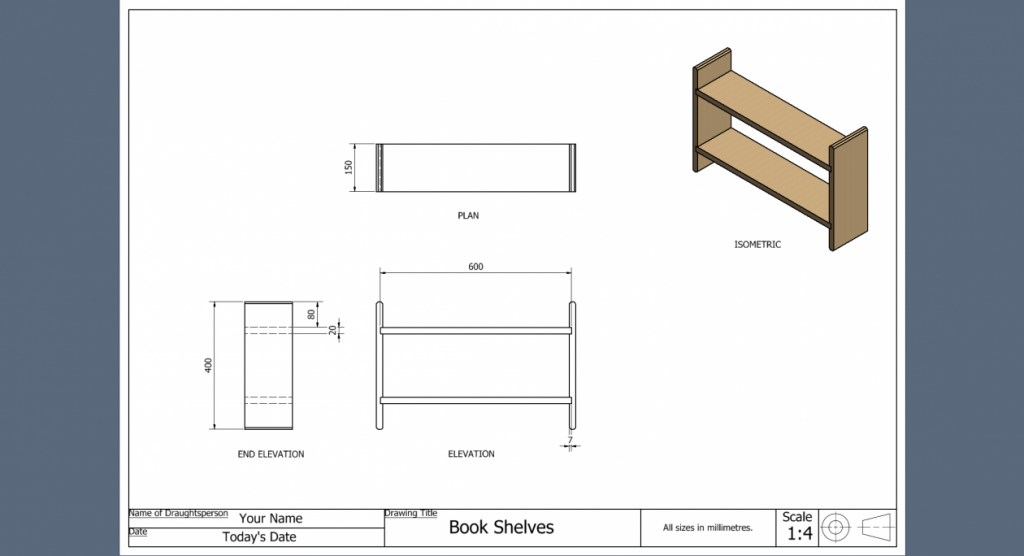
Watch the step-by-step demonstration for modelling and assembling the Book Shelves below . Use the Working Drawing image to check dimensions.
Remember to save all files in the same folder.
Working Drawing

Booklet
Also check out these S2 Graphics projects;

You must be logged in to post a comment.